Where Real Estate Is Heading: Ten New Thesis Driven Workshops
A new lineup of upcoming sessions on AI, capital raising, student housing, placemaking, and the operating models reshaping commercial real estate
While many advocates have focused on zoning reform, one change could unlock even more new housing: legalizing single-stair multifamily.
Housing advocates celebrated a string of victories in 2023, including the legalization of missing middle housing and ADUs as well as permitting process reforms. But while most YIMBY attention has been focused on changes to zoning, building code reform may offer an even bigger opportunity to unlock ground-up multifamily development. And bringing the US in line with its European and Asian peers by legalizing single-stair multifamily buildings is perhaps the most significant of those proposed reforms.
Today’s Thesis Driven is a guest letter by Stephen Smith, the Executive Director of the Center for Building in North America. The Center for Building is perhaps the most interesting under-the-radar policy group in housing today, as they do the hard work of comparing the wonkiest bits of building code across jurisdictions, looking at safety as well as cost outcomes. The letter explores:
Read on for more from Smith.
One evening in 1860, a fire broke out in a basement bakery in a six-story tenement at 142 Elm Street, today’s Lafayette Street in Lower Manhattan. Fire and smoke spread up the building, home to at least 20 families, the fire fed in part by the building’s only exit: a wood staircase. Firefighters were able to rescue people up to the fourth floor, but their ladders could not reach any higher. “As the firemen stood on the ladders,” wrote the New York Times the next day, “they could see many women and children lying prostrated on the floor, surrounded by the flames, which rendered all attempts to approach them ineffectual.”
Thesis Driven is a reader-supported publication. To receive new posts and support my work, consider becoming a free or paid subscriber.
For an American city in the 19th century, the fire was actually quite small. By then New York City had already had three great fires since 1776, and Chicago would burn 11 years later. Even into the 20th century, American cities would still not be safe from great fires, with San Francisco burning in the aftermath of the 1906 earthquake.
Across the Atlantic Ocean, great urban fires were largely a solved problem by the 19th century. After the Great Fire of London of 1666, Parliament did what European governments had been doing since at least Ancient Rome: they limited the use of wood in buildings. Without fuel from the structure of buildings themselves, fires still broke out in Europe, but their damage was limited, and great urban fires by the 19th century were mostly confined to smaller or poorer cities on the continent’s edge that hadn’t yet made the transition to brick, stone, metal, and concrete.

Not so in North America. The continent’s thick woods, fast growth, and rural (and later suburban) character meant that the United States and Canada has to this day never fully moved away from wood-frame construction. Instead, just days after 142 Elm Street burned, the jury that convicted the building owner issued a call for “the enactment of a law making it incumbent upon owners of tenement buildings to place iron stairways, or some other approved means of egress, on the outside of these structures.” Soon after the state legislature followed through on their request, and the requirement to provide a second means of egress in apartment buildings was born.
Today, the flimsy fire escapes that satisfied officials in the 1860s have morphed into something much more. Two stairs are required for new apartment buildings above three stories by America’s model International Building Code (whose claim to internationality comes largely from a handful of tiny island nations). They must sit on opposite ends of a building, and they must be fully enclosed. The standards are not unheard of in Europe and Asia, but they are typically only applied to true high-rises – above around 20 stories in Singapore, or 25 stories in Italy (and even then, the required distance between the two stairs is not as large as in the US).
As a legacy code requirement, there has never been much modern analysis of America’s two-stair requirement and its impact on fire safety outcomes, but the United States in general does quite poorly on these measures. Almost every country in Western Europe—where single-stair apartment buildings can rise many times the IBC’s three-story height limit—has fewer fire deaths per capita than the US. New York City, which allows single-stair buildings up to six stories (and has many apartment buildings where the second exit is a flimsy fire escape that does not meet modern code requirements), has slightly fewer deaths per capita than the rest of the US. Since the second exit code requirement was first introduced over 150 years ago, the field of fire safety has seen countless more sophisticated innovations, from passive measures like enclosed stairways and fire-resistance-rated materials, to more technologically advanced systems like smoke detectors and fire sprinklers.
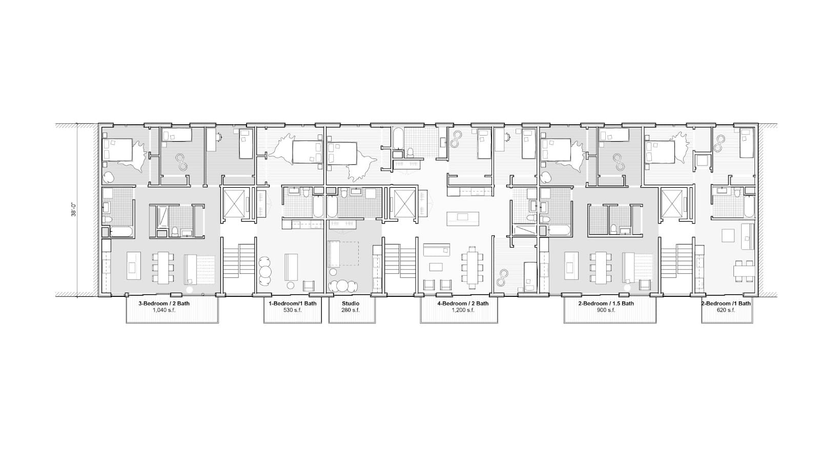
Despite the questionable effect on fire safety outcomes, North America’s unusual second stair requirements have an outsized impact on the design of multifamily buildings. The rules make it almost impossible to efficiently recreate the traditional design of apartment buildings, termed “point access blocks” by Seattle architect Michael Eliason—a few units around a single stair, with maybe an elevator. The common hallway that must connect the two stairs in a modern American code-compliant building cuts the structure in two, cutting off the possibility of floor-through apartments found in traditional American multifamily architecture like the New York City tenement or the Los Angeles dingbat.

Small plots of land, like the 25- to 75-foot wide lots that most American cities and inner suburbs have been carved up into, have become less feasible to develop. On a 25-foot-wide lot in Jersey City, NJ—just across the Hudson River from Manhattan—the second stair consumes 7 percent of the total floor area, with a few additional percentage points shifted from rentable square footage to un-rentable common area. It ends up all but eliminating windows in two bedrooms, giving them access to just a minuscule air shaft. A developer might be able to stomach it in Jersey City, but in more ordinary markets, without the housing shortage of the New York area, such lots would be rendered unbuildable above three stories.

The double-loaded corridor that meets modern American building code requirements can provide studio and one-bedroom apartments just fine, since these have a low ratio of living and bedroom space (which must, at least traditionally, have access to natural light and fresh air) to kitchen and bathroom space (which can be placed up against the dark common corridors). But when architects try to design apartments with two or more bedrooms, the apartments balloon in size, since every 10-foot-wide bedroom ends up coming with 30 or more feet in unit depth. Try to add a single 120-square foot bedroom and you’ll end up having to add another 180 square feet on top that you need to fill some other way—probably with walk-in closets and en-suite bathrooms, adding the expense of more plumbing, fixtures, and tiles.
Each square foot of space costs just as much to build whether it has access to light or not, so the rent that developers must achieve for these two-, three-, or—god forbid—four-bedroom apartments balloons far beyond the ability or willingness of families to pay. And if renters or condo buyers don’t like it, they can just drive till they qualify for a single-family house in the suburbs.
Without the requirement for a second stair, buildings can be laid out in a fundamentally more efficient way. With less vertical circulation, the circulation core can simply be repeated a few different times, with apartments of different sizes arrayed off of each core, potentially stretching from the front of the building to the back. If planners redraw zoning envelopes to accommodate thinner buildings, more bedrooms can be packed in less square footage, offering more affordable and competitive family-sized designs. With units that appeal more to families (in New York City, condo buildings average 1,189 gross sq. ft., compared to 838 sq. ft. for rentals) and reform of defect liability laws that drive insurance costs up for condo developers, America might even be able to bring its condo construction numbers up from historic lows.

The YIMBY movement and other housing reformers have made progress over the last decade or more in loosening zoning codes, but building codes in America are still largely a one-way ratchet, getting tighter and tighter with every fire, with no relief due to new technologies, provisions, and understanding of fire engineering. The model code writers are responsive to materials manufacturers and the fire service, but multifamily developers and housing affordability advocates do not exert much authority. Sometimes the manufacturers who donate to the International Code Council and can afford to pursue code changes make positive contributions (for example, the American Wood Council’s advocacy for mass timber), but more often their interests have a questionable relationship to the public good.
States and localities have the power to adopt, reject, and amend model codes like the IBC, but lack the capacity to do much informed analysis and research. The better-resourced federal government used to play a larger role in code development, but has mostly retreated in recent decades.
Recognizing that building codes are the next frontier in housing reform, I founded the Center for Building in North America around a year ago, to do research on and advocate for changes to building codes that could bring down the cost of production of multifamily housing, and improve efficiency and quality. The opportunities for reform are as deep as a modern building is complex – from more modern refrigerants that would allow Americans to buy heat pumps on the global market to more efficient single-stack venting in plumbing systems that could cut plumbing costs dramatically – but we decided to focus on stairs as our first issue, given the importance to building design and the existing movement among architects for reform.
We’ve worked with housing advocates in states across the US to advance legislation and administrative changes to building codes to allow single-stair buildings up to six stories, above the current three-story limit in most of America, drawing on language already adopted in Seattle, Honolulu, and New York City, and extensive experience abroad.
While the current single-stair limits were arrived at through trial-and-error and fairly rudimentary logic, status quo bias means that proposed reforms will be held to a much higher standard. To change such a fundamental tenet of American building codes, though, will require more advanced analysis. Fire protection engineering and data collection has advanced greatly in the century and a half since the second means of egress emerged in 1860, and today there are more engineered and big data approaches to proving safety.
Since the benefits are diffuse and multifamily development interests in America are poorly organized on a national level, there is not much of a natural constituency for this sort of work. One of my goals when founding the Center for Building in North America in 2022 was to produce research and organize urbanists, architects, real estate developers, and others to advocate for more rational building codes in the United States and Canada.
—Stephen Smith
For anyone who is interested in diving deeper into these topics, I’d encourage you to reach out to Stephen at stephen@centerforbuilding.org. He’s one of the most knowledgable people I know when it comes to global building codes and policy reform, and he has been a great resource to Thesis Driven in the past.
Beyond that, his work at the Center for Building requires funding, and he’s raising $150,000 to produce data to prove the safety of taller single-stair buildings and push this code change past the finish line. If any Thesis Driven subscribers are interested in supporting this work, you can donate small sums on their Donorbox site or email Stephen at the email above to discuss a larger donation.
—Brad Hargreaves
Thesis Driven is a reader-supported publication. To receive new posts and support my work, consider becoming a free or paid subscriber.
Covering the future of real estate and the people creating it